Casa EM Ibiporã - PR

Casa com 3 quartos à venda por R$ 235.000,00 – Parque do Vale – Ibiporã/PR - Parque do Vale

REF:. CA225531

Venda R$ 275.000,00


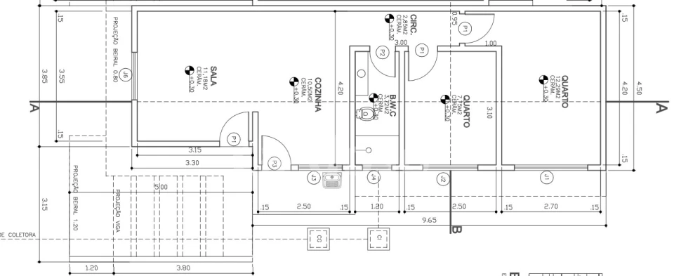
Quantidade de quartos 3 Quartos Quantidade de banheiros 1 BWC Quantidade de garagens 1 Vaga de garagem Metragem privativa 56 m² PRIVATIVOS Metragem total 140 m² TOTAL

DESCRIÇÃO DO IMÓVEL


🏡 CASA COM 3 QUARTOS NA PLANTA À VENDA – PARQUE DO VALE | IBIPORÃ

Previsão de entrega: junho de 2026

DETALHES DO IMÓVEL:
• Terreno com 140 m² (7x20)
• Construção com 76 m²
• 3 quartos
Banheiro social
Sala com pé direito alto
   cozinha

Área de serviço
Garagem descoberta

VALOR E CONDIÇÕES DE NEGOCIAÇÃO:
💰 R$ 275.000,00
✔️ Financiamento disponível pelo programa Minha Casa Minha Vida
🚗 Estuda pegar veículo como entrada
📆 Possibilidade de parcelar a entrada durante o período de construção

Essa é a chance de investir em um imóvel novo, com excelente custo-benefício e em uma região de constante valorização.


LOCALIZAÇÃO DO IMÓVEL

FALE COM UM CONSULTOR